Raffles Seychelles *****

Seychely

Priestranné vily so súkromným bazénom

Rýchla kalkulácia hotela

Odlet
Noci v hoteli
Raffles Seychelles

Pro hotel Raffles Seychelles není dostupná online kalkulace. Cenu Vám rádi sdělíme na vyžádání – prosím vyplňte svůj požadavek v kontaktním formuláři. Detail hotelu Raffles Seychelles.

Typ izby
Strava

Letecká společnost
Bonus
CZK
EUR
Počítame cenu Vášho zájazdu. Vyčkajte prosím.
Počítame cenu
Vášho zájazdu.
Vyčkajte prosím.
Počítame cenu Vášho zájazdu. Vyčkajte prosím.
Počítame cenu
Vášho zájazdu.
Vyčkajte prosím.

Hotel Raffles Seychelles *****

Hodnotenie 9.5* Hodnotilo 8 klientov DELUXEA
Detailné hodnotenie
Lokalita Seychely, Praslin, Anse Volbert | Zobraziť mapu
Strava Raňajky, Polpenzia, Plná penzia | Viac o gastronómii
Špecialisti, ktorí
v hoteli bývali

Popis hotela Raffles Seychelles ***** Seychely

Luxusný hotel Raffles sa nachádza na severovýchode ostrova Praslin uprostred zelene s prekrásnymi žulovými skalami. Jedná sa o jedinečný rezort svetovej triedy pre tých, čo hľadajú intímne kúzlo dovolenky v pravom raji. Nedotknutá pláž s bielym pieskom, azúrová voda Indického oceánu a skvelý servis čakajú už len na vaše objavovanie. Dlhý bazén je vhodný na kondičné plávanie aj na relaxáciu pre rodiny s deťmi. Súčasťou rezortu sú aj kúpele, posilňovňa, salón krásy, detský klub a pavilón určený joge a pilates.

Raffles je ideálne miesto na únik od každodenného stresu. Čas, akoby tu ani neplynul. Môžete sa tu opaľovať, plávať, šnorchlovať, prechádzať sa alebo nerobiť vôbec nič. A keď načerpáte sily, môžete si pozrieť mystický prehistorický les Vallée de Mai, čarovné ostrovy Curieuse a La Digue alebo sa vydať do nádherného morského parku.

Za pätnásť minút letu lietadlom či helikoptérou sa dostanete na hlavný ostrov Mahé, kde sa taktiež nachádza medzinárodné letisko.

 

Hotel prechádza modernizáciou reštaurácií, barov a voľnočasových priestorov; rekonštrukcia bude dokončená v máji 2026. počas rekonštrukcie budú reštaurácie fungovať s obmedzenou kapacitou a v náhradných priestoroch.

Zobraziť viac  Mám záujem o hotel

Naše odporúčanie k Raffles Seychelles

Luxusný vilový rezort s úžasnou polohou vo svahu nad krásnym severovýchodným pobrežím ostrova Praslin. Rezort ponúka privátne vily s jednou až štyrmi spálňami, pričom každá vila disponuje vlastným bazénom. Rozdiel v jednospálňových vilách je predovšetkým v ich polohe a výhľade. Niektoré sú umiestnené pri pláži, iné potom na svahu a ponúkajú výhľady do záhrady alebo čiastočné, plné či panoramatické výhľady na oceán. Rezort Raffles je teda vhodný ako pre páry, tak aj pre rodiny s deťmi.

Hotel patrí medzi dva najlepšie rezorty na ostrove Praslin a pýši sa naozaj prvotriednymi službami pri modernom zázemí. Nechýba ani možnosť transferu do hotela helikoptérou v štýle Jamesa Bonda.

V areáli hotela je možné využívať dopravu hotelovými buginami, čo v kopcovitom teréne určite uľahčí pohyb.

Raffles sa pýši tromi plážami. Hlavná pláž (prostredná) je najkrajšia, ale využívať môžete aj ďalšie dve menšie pláže po stranách. Výhodou je obrovský hotelový bazén, ktorý ocenia aj plavci.

Hostia sa môžu tešiť na skutočný gastronomický zážitok vrátane japonských či ázijských špecialít. Hlavné stravovanie prebieha v bufetovej reštaurácii, pričom k dispozícii sú pobyty s raňajkami, polpenziou alebo plnou penziou.

Nechýbajú ani krásne kúpele, fitness centrum alebo detský klub a herná miestnosť.

Video hotela

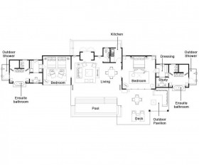
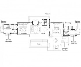
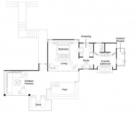
Plánik hotela a ponuka izieb

Plánik hotela

Plánik hotela

Rozkliknutím si plánik zväčšíte.

Hillside Pool Villa

Hillside Pool Villa

Hillside Pool Villa (125 m²) vďaka svojej polohe hľadí na nádhernú zátoku a časť oceánu. Stane sa vašou súkromnou svätyňou...

Oceanview Pool Villa

Oceanview Pool Villa

Oceanview Pool Villa (125 - 135 m²) je strategicky umiestnená na vyhliadke, z ktorej uvidíte nekonečnosť oceánu a ostrov Curieuse...

Panoramic Pool Villa

Panoramic Pool Villa

Panoramic Pool Villa (135 m²) sa týči na najvyššom mieste rezortu a sľubuje tak najlepší výhľad...

Gastronómia a hotelové reštaurácie

Hotelové reštaurácie vydarene kombinujú miestne tradičné pokrmy s kuchyňami z celého sveta. Každá reštaurácia má svoju vlastnú atmosféru, a tak si môžete vyberať podľa nálady aj podľa príležitosti.

Losean Restaurant varí klasickú stredomorskú kuchyňu ľahko ovplyvnenú indickým oceánom. Hlavným lákadlom je bezpochyby otvorená kuchyňa a hojné zastúpenie čerstvých domácich produktov. Reštaurácia sa nachádza pod hlavnou vstupnou halou a otvorená je na raňajky (7:00–11:00) a večere (19:00–23:00). Za vhodné je považované neformálne a elegantné ošatenie. Odporúčaná je rezervácia. Jedálny lístok sa denne mení a k dispozícii sú aj detské menu.

Curieuse Restaurant je reštaurácia pomenovaná po blízkom ostrove Curieuse. Prekypuje sviežou atmosférou. Ide o uvoľnené neformálne miesto. Curieuse ponúka najvyššiu kvalitu morských plodov pripravených podľa moderných kulinárskych postupov. Menšie, zato delikátne á la carte menu je doplnené denne s meniacim výberom zo špecialít. Reštaurácia sa nachádza vedľa bazéna a otvorená je každý deň od 19:00 do 23:00. Za vhodné je považované neformálne a elegantné oblečenie. Odporúča sa rezervácia. V menu sú zastúpené predovšetkým morské plody a na grile pripravované pokrmy. Špecialitou sú plata s morskými plodmi a dostupné sú aj detské menu.

Ďalším skvelým miestom je Pool Resturant & Bar. Ponúka kreolskú kuchyňu z čerstvých a miestnych produktov.

Danzil Lounge je bar pomenovaný po miestnom predhorí. Hosťom ponúka inšpiratívny výhľad na krajinu smerom k oceánu. Môžete si tu nechať pripraviť niektorý zo širokej ponuky koktailov či výborných alkoholických nápojov od najlepších whisky, koňakov a rumov až po vynikajúce vína. Pre fajnšmekrov, ktorí si radi pri drinku pofajčia je tu pripravený veľký výber z kubánskych cigár. Bar sa nachádza pod hlavnou vstupnou halou a otvorený je vždy od 18:00 do 24:00. Rezervácia nie je nutná.

Za zmienku stojí aj Pti Zil Beach Bar, šik prostredie na pobreží, kde si môžete vychutnať farebný koktail alebo zahryznúť niečo menšie.

Takamaka Terrace & Shisha Lounge ponúka prekrásny výhľad na more a vyžaruje z neho sofistikovaná upokojujúca atmosféra. Ponúkajú sa tu značkové koňaky, whisky, vína, klasické aj značkové koktaily priamo pod hviezdami. Takamaka je tým pravým miestom pre tých, ktorí si radi vychutnajú koktail pred či po večeri spolu s vodnou fajkou.

Vďaka rozličnej krajine, ktorou rezort oplýva, sú tu možnosti vonkajšieho či súkromného stravovania pre zvláštne príležitosti. Majordómovia z Raffles sú schopní pre vás zariadiť piknik na pláži či záhrade, na vrchole niektorého žulového útvaru, na palube jachty či barbecue priamo pri vašej vile. Samozrejmosťou je 24 hodinová služba, ktorá vám prinesie jedlo až do izby. V rámci tejto služby máte na výber z mnohých klasických medzinárodných pokrmov a vegetariánskych jedál. Uspokojené budú aj vaše špeciálne priania či špecifické diéty. Na požiadanie je možné pripraviť piknik alebo romantické večere pod hviezdami. Dostupné sú aj detské menu.

V cestovnej kancelárii DELUXEA Vám pripravíme dovolenku na mieru.

 

Odlety sú možné z Prahy alebo Viedne každý deň. Lietame luxusnými lietadlami Emirates. Dĺžka Vášho pobytu môže byť ľubovoľná. Môžete si vybrať typ izby alebo formu stravovania. Seychely sme opakovane navštívili a poskytneme Vám osobné rady. Sú špecializáciou česko-slovenskej cestovnej kancelárie DELUXEA a.s. založenej v roku 1995. Hotel, transfer a ďalšie služby pre Vás objednávame priamo na Seychelách. Služby pre Vás nekupujeme v nemeckej cestovnej kancelárii a pri cestovaní nebudete členmi žiadnej skupiny. Pokiaľ by ste potrebovali akúkoľvek zmenu v zájazde, tak priamo my Vám všetko na Seychelách zariadime a to rýchlo a operatívne. Postaráme sa o Vás.

Kategórie a vybavenosť izieb Raffles Seychelles

Rezort má k dispozícii celkom 86 víl navrhnutých v modernom štýle, každú s vlastným bazénom a rozširujúcim vonkajším pavilónom. Jedno a dvojizbové Villa Suites môžu využívať aj záhradný gril vo vonkajšom pavilóne. Vily patria k tým najpriestrannejším na Seychelách. Ich minimálna výmera je 125 metrov štvorcových a sú postavené na miernych svahoch. Okrem luxusného ubytovania ponúkajú hosťom aj možnosť pokojnej prechádzky po rezorte či dopravu prostredníctvom automobilu.

Villas

Všetky vily disponujú nasledujúcim vybavením: privátnym bazénom, veľkou terasou s lehátkami, vonkajším jedálenským pavilónom, trezorom, hypo-alergénnymi lôžkovinami, dvojitou šatňou, barom, písacím stolom, Nespresso kávovarom a príslušenstvom na prípravu čaju, karimatkou na jogu, maliarskym stojanom a skicárom.

V každej vile sa nachádza priestranná kúpeľňa plná denného svetla. Vnútri sa ukrýva vaňa s krásnym výhľadom, oddelená toaleta, sprchovací kút a užiť si môžete aj vonkajšiu sprchu.

Vily sa pýšia aj modernými technológiami, ako je vysokorýchlostné pripojenie k internetu, plazmová televízia, DVD prehrávač, príslušenstvo k MP3 prehrávačom, nočné osvetlenie a servisný panel.

Súčasťou pobytu vo vilách je aj tento servis: 24 hodinová izbová služba, servis práčovne, stráženie detí, transfer luxusným vozidlom, miestne výlety a exkurzie, kúpeľné procedúry, vonkajšie aktivity a vodné športy, denná tlač a lekcie jogy a pilates. Ďalej aj prístup do DVD Library, detského klubu The Sugar Palm a služby komorníka.

Villas Suites

Tieto krásne a priestranné príbytky sú vybavené: privátnym bazénom, veľkou terasou s lehátkami, vonkajším jedálenským pavilónom, barbecue grilom, kuchyňou s chladničkou a mikrovlnou rúrou, obývacou izbou, jedálňou, dvojitou šatňou, trezorom, hypo-alergénnymi lôžkovinami, barom Nespresso kávovarom, príslušenstvom na prípravu čaju, karimatkou na jogu, maliarskym stojanom a skicárom.

Kúpeľňa obsahuje vaňu s výhľadom, sprchovací kút, oddelenú toaletu a vonkajšiu sprchu.

Priestory sú moderne zariadené a ponúkajú tieto technologické vymoženosti: vysokorýchlostné pripojenie k internetu, LED televíziu, DVD prehrávač, príslušenstvo k MP3 prehrávačom, stanicu pre iPod, ovládanie svetiel a servisný panel.

Ako hostia Villas Suites budete mať k dispozícii aj nasledujúci servis: 24 hodinová izbová služba, servis práčovne, stráženie detí, transfer luxusným vozidlom, miestne výlety a exkurzie, kúpeľné procedúry, vonkajšie aktivity a vodné športy, dennú tlač a lekcie jogy a pilates. Ďalej aj prístup do DVD Library, detského klubu The Sugar Palm a služby komorníka.

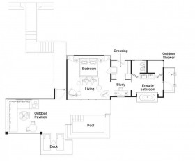
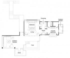
Plánik hotela a ponuka izieb

Plánik hotela

Plánik hotela

Rozkliknutím si plánik zväčšíte.

Hillside Pool Villa

Hillside Pool Villa foto

Hillside Pool Villa (125 m²) vďaka svojej polohe hľadí na nádhernú zátoku a časť oceánu. Stane sa vašou súkromnou svätyňou. Užijete si tu všetky luxusné atribúty spomínané vyššie, vrátane nádhernej otvorenej terasy s úžasným výhľadom.

Oceanview Pool Villa

Oceanview Pool Villa foto

Oceanview Pool Villa (125 - 135 m²) je strategicky umiestnená na vyhliadke, z ktorej uvidíte nekonečnosť oceánu a ostrov Curieuse. V chránenom vonkajšom pavilóne môžete organizovať barbecue, vo vnútri budete mať k dispozícii aj kuchynskú časť.

Panoramic Pool Villa

Panoramic Pool Villa foto

Panoramic Pool Villa (135 m²) sa týči na najvyššom mieste rezortu a sľubuje tak najlepší výhľad.

Grand Hillside View Pool Villa

Grand Hillside View Pool Villa foto

Grand Hillside View Pool Villa (200 m²) je obklopená zeleňou. Priestory sú vskutku impozantné, s oddelenou spálňou, priestranným vonkajším pavilónom a súkromným bazénom. Kúpeľňa je navrhnutá tak, aby poskytovala súkromie a dostatok priestoru.

Grand Ocean View Pool Villa

Grand Ocean View Pool Villa foto

Grand Ocean View Pool Villa (200 m²) ponúka skvelé výhľady na Indický oceán a je obklopená bujnou tropickou zeleňou. Má oddelenú spálňu, obývací priestor a vonkajší priestor s bazénom. Je ideálnou voľbou pre rodiny.

Grand Panoramic Pool Villa

Grand Panoramic Pool Villa foto

Grand Panoramic Pool Villa (200 m²) sa nachádza na samom vrchole rezortu, a tak si odtiaľ užijete ten najlepší výhľad. Napríklad z vlastného bazéna alebo z priestrannej terasy.

Two Bedroom Ocean View Pool Villa

Two Bedroom Ocean View Pool Villa foto

Two Bedroom Ocean View Pool Villa (275 m²) je pravou esenciou luxusu a štýlu s úžasným výhľadom na oceán, dvoma spálňami, kúpeľňami a úžasným súkromným vonkajším priestorom, ktorý si jednoducho zamilujete. Ideálne pre rodiny, alebo skupinu priateľov.

Two Bedroom Beachfront Pool Villa

Two Bedroom Beachfront Pool Villa foto

Two Bedroom Beachfront Pool Villa (275 m2) - priestranná vila s elegantným obývacím priestorom, dvoma oddelenými spálňami s vlastnými kúpeľňami a vonkajším priestorom s bazénom.

Four Bedroom Pool Residence (460 m2)

Four Bedroom Pool Residence (460 m2) foto

Objavte kúzlo tropického raja v luxusnej rezidencii so štyrmi spálňami, kde sa prebúdzate s výhľadom na trblietavý Indický oceán. Vzdušné interiéry, rozľahlé terasy a premyslený dizajn zaručujú dokonalú relaxáciu v úplnom súkromí. Aj tak vás od špičkových služieb rezortu bude deliť iba pár krokov. Ideálna voľba pre rodiny, ktoré hľadajú harmóniu, komfort a dych vyrážajúce scenérie. Hostia obývajúci túto rezidenciu dlhšie ako 4 noci získajú na pobyt navyše množstvo benefitov, viď vyššie.

Pláž a more

Priamo pri hoteli sa vinie nádherná hlavná pláž pokrytá jemným bielym pieskom. Ďalej je možné využívať ďalšie dve menšie pláže priamo pri areáli rezortu. Za zvuku oceánu tu môžete pokojne relaxovať a oddávať sa slastnému ničnerobeniu. Odpočinok na Seychelách rozhodne nie je hriech.

Online cena a slevy Raffles Seychelles *****

Profi foto hotela Raffles *****

Naše foto hotela Raffles *****

Video

Gastronómia a hotelové reštaurácie Raffles Seychelles

Hotelové reštaurácie vydarene kombinujú miestne tradičné pokrmy s kuchyňami z celého sveta. Každá reštaurácia má svoju vlastnú atmosféru, a tak si môžete vyberať podľa nálady aj podľa príležitosti.

Losean Restaurant varí klasickú stredomorskú kuchyňu ľahko ovplyvnenú indickým oceánom. Hlavným lákadlom je bezpochyby otvorená kuchyňa a hojné zastúpenie čerstvých domácich produktov. Reštaurácia sa nachádza pod hlavnou vstupnou halou a otvorená je na raňajky (7:00–11:00) a večere (19:00–23:00). Za vhodné je považované neformálne a elegantné ošatenie. Odporúčaná je rezervácia. Jedálny lístok sa denne mení a k dispozícii sú aj detské menu.

Curieuse Restaurant je reštaurácia pomenovaná po blízkom ostrove Curieuse. Prekypuje sviežou atmosférou. Ide o uvoľnené neformálne miesto. Curieuse ponúka najvyššiu kvalitu morských plodov pripravených podľa moderných kulinárskych postupov. Menšie, zato delikátne á la carte menu je doplnené denne s meniacim výberom zo špecialít. Reštaurácia sa nachádza vedľa bazéna a otvorená je každý deň od 19:00 do 23:00. Za vhodné je považované neformálne a elegantné oblečenie. Odporúča sa rezervácia. V menu sú zastúpené predovšetkým morské plody a na grile pripravované pokrmy. Špecialitou sú plata s morskými plodmi a dostupné sú aj detské menu.

Ďalším skvelým miestom je Pool Resturant & Bar. Ponúka kreolskú kuchyňu z čerstvých a miestnych produktov.

Danzil Lounge je bar pomenovaný po miestnom predhorí. Hosťom ponúka inšpiratívny výhľad na krajinu smerom k oceánu. Môžete si tu nechať pripraviť niektorý zo širokej ponuky koktailov či výborných alkoholických nápojov od najlepších whisky, koňakov a rumov až po vynikajúce vína. Pre fajnšmekrov, ktorí si radi pri drinku pofajčia je tu pripravený veľký výber z kubánskych cigár. Bar sa nachádza pod hlavnou vstupnou halou a otvorený je vždy od 18:00 do 24:00. Rezervácia nie je nutná.

Za zmienku stojí aj Pti Zil Beach Bar, šik prostredie na pobreží, kde si môžete vychutnať farebný koktail alebo zahryznúť niečo menšie.

Takamaka Terrace & Shisha Lounge ponúka prekrásny výhľad na more a vyžaruje z neho sofistikovaná upokojujúca atmosféra. Ponúkajú sa tu značkové koňaky, whisky, vína, klasické aj značkové koktaily priamo pod hviezdami. Takamaka je tým pravým miestom pre tých, ktorí si radi vychutnajú koktail pred či po večeri spolu s vodnou fajkou.

Vďaka rozličnej krajine, ktorou rezort oplýva, sú tu možnosti vonkajšieho či súkromného stravovania pre zvláštne príležitosti. Majordómovia z Raffles sú schopní pre vás zariadiť piknik na pláži či záhrade, na vrchole niektorého žulového útvaru, na palube jachty či barbecue priamo pri vašej vile. Samozrejmosťou je 24 hodinová služba, ktorá vám prinesie jedlo až do izby. V rámci tejto služby máte na výber z mnohých klasických medzinárodných pokrmov a vegetariánskych jedál. Uspokojené budú aj vaše špeciálne priania či špecifické diéty. Na požiadanie je možné pripraviť piknik alebo romantické večere pod hviezdami. Dostupné sú aj detské menu.

All Inclusive

Bezplatné vybavenie a služby pre všetkých hostí hotela Raffles

  • uvítací nápoj a špeciálny darček po príchode
  • personalizované služby priamo Vám na mieru
  • exkluzívne nákupy luxusného tovaru a suvenírov
  • možnosť rýchleho a privátneho cestovania helikoptérou (nezahŕňa náklady na transfer/let)
  • neobmedzený prístup do kúpeľov
  • 24 hodinové fitness centrum
  • neobmedzené lekcie jogy
  • karimatky vo všetkých vilách
  • výlety so sprievodcom: šnorchlovanie, túry, výlet do botanickej záhrady
  • nemotorizované vodné športy: paddle boardy, kajaky s čírym dnom, šnorchlovacie vybavenie
  • vybavenie k bazénu
  • vnútorné športy a hry: air hokej, stolný tenis, šach, backgammon
  • príslušenstvo na prípravu čaju a kávy, kávovar
  • nočný servis každý deň
  • vodný filtračný systém
  • program starostlivosti o morské koraly
  • kŕmenie morských želv
  • pétanque

Stravovacie balíčky platné od 1.11.2025  do 31.10.2026

Polpenzia: 

Trojchodová večera á la carte v reštauráciách Losean Creole Mediterranean, Curieuse pan Asian a The Sushi Room.

Plná penzia:

Trojchodový obed v reštaurácii Pool Bar Restaurant a večera v reštauráciách Losean Creole Mediterranean, Curieuse pan Asian a The Sushi Room. 

*Lekcia varenia, destination dining a tematické noci sú vždy za poplatok a nie sú zahrnuté v stravovacích balíčkoch. Všetky nápoje sú za poplatok. 

Nápojový balíček platný od 1.11.2025 do 20.12.2025 zahŕňa:

  • nealkoholické koktejly (moktejly)
  • klasické koktejly
  • vína v pohári (šumivé, červené, biele a ružové)
  • miestne a dovezené pivá
  • destiláty (vodka, tequila, rum, whisky, gin)
  • vodu, nealkoholické nápoje, džúsy
  • horúce nápoje

Děti do 18 rokov majú zadarmo: perlivú a neperlivú vodu, Coca Colu, Diet Colu, Sprite, Fantu, Bitter Lemon, Tonic, Ginger Ale, ovocné šťavy a džúsy, horúce nápoje.

*Nápojový balíček je dostupný vždy od 11:00 do 23:00 v otváracej dobe barov a reštaurácií, nevzťahuje sa na nápoje vo vilách ani na mini bar. Všetky nápoje sa servírujú v pohári. 

 

Delegát a služby na Seychelách

Cestovná kancelária DELUXEA ponúka na Seychelách asistenciu našej miestnej partnerskej CK Masons Travel. Ich zástupca na Vás bude čakať na letisku a odprevadí Vás na Váš transfer, či už autom, loďou, alebo lietadlom. Odovzdá Vám informačnú zložku s mapou Seychel a taktiež kontakt na delegáta, ktorý Vás druhý deň na hoteli navštívi. Delegáti hovoria anglicky a francúzsky, po predchádzajúcom vyžiadaní môžeme zaistiť nemecky hovoriaceho.

Na osobnej schôdzke vo Vašom hoteli sa môžete delegáta opýtať na všetko, čo Vás zaujíma. Počas celej dovolenky sme pre Vás na telefóne 24 hodín denne aj my v cestovnej kancelárii. Môžete nás požiadať o asistenciu alebo iba poslať fotky, ako si užívate more či miestnu kuchyňu. Sprievodcovia a privátni vodiči ovládajú plynule angličtinu a francúzštinu.

Na Seychelských ostrovoch sa o Vás bude starať naša partnerská cestovná kancelária MASON´S TRAVEL, ktorá kladie dôraz predovšetkým na kvalitu služieb, ktoré poskytuje Návštevníkom ostrovov. Cieľom spoločnosti je nielen zaistiť transfery, výlety a ďalšie služby, ale hlavne sa postarať, aby zážitok z pobytu na Seychelských ostrovoch bol úplný. Snažia sa predstaviť krásy prírody aj miestnu kreolskú kultúru. Spoločnosť má niekoľko profesionálne vyškolených zamestnancov hovoriacich anglicky, francúzsky a nemecky.

Služby MASON´S TRAVEL po prílete, počas pobytu a pred odletom zahŕňajú:

  • Privítanie s tabuľkou s Vašimi menami alebo pri prepážke MASON´S TRAVEL, ktorá sa nachádza priamo v budove letiska
  • Team usmievavých delegátov v uniformách, ktorí Vám odovzdajú mapu ostrova a brožúrku s možnosťami výletov a exkurzií
  • Vodu alebo uvítací nápoj (VIP uvítací balíček Creole Exclusiv)
  • Pomoc v prípade akéhokoľvek problému (napríklad poškodenie alebo oneskorenie batožiny)
  • Transfer do hotela
  • Zariadenie exkurzií podľa priania
  • Vodiča, ktorý Vám cestou do hotela rád odovzdá informácie o ostrove a možnostiach výletov
  • Schôdzku s delegátkou priamo v hoteli, a to bežne na druhý deň po prílete
  • Asistenciu pri odbavení počas odletu zo Seychel

Šport a wellness hotela Raffles *****

Raffles poskytuje nielen luxusné ubytovanie, ale aj dokonalé služby. Svojim hosťom sa snaží vyjsť čo najviac v ústrety, a tak tu môže úžasnú dovolenku prežiť naozaj každý.

Ak ste milovníkmi športu, určite vás poteší prvotriedna telocvičňa s najmodernejším vybavením určená iba pre hostí rezortu. K dispozícii budete mať aj presvetlený a prevzdušnený Movement Pavilion, ktorý ponúka priestor na osobné lekcie jogy či pilates s tunajším inštruktorom.

Ak športu práve neholdujete, môžete voľný čas tráviť napríklad na pláži s dobrou knižkou. Miestna knižnica je rezidenčné útočisko vybavené modernými technológiami ako sú počítače, tlačiarne, fax či vysokorýchlostný internet. Hostia môžu vyberať z veľkej zbierky materiálov na čítanie či multimediálnych zdrojov (hudba a filmy na CD a DVD).

Navštíviť môžete aj Retail Boutique, obchod, v ktorom sú k dostaniu drobnosti od novín a magazínov až po tovar na dennú potrebu, medzi ktorým nájdete napr. aj opaľovacie krémy. Dováža sa tu aj množstvo miestnych a importovaných doplnkov, oblečenia a suvenírov špeciálne vybraných tak, aby reflektovali unikátnu kreolskú tradíciu a kultúru.

Unikátnym miestom zasväteným na odpočinok sú kúpele. Raffles Spa sa nachádza uprostred unikátnych skalnatých útvarov vysoko nad vodou. Výhľad z každého okna kúpeľov je jednoducho dych vyrážajúci. Vychutnajte si luxus osobnej ošetrovne a doprajte si masáž či masku podľa vášho výberu kombinujúcu časom preverené tradície a moderné technológie na starostlivosť o vašu myseľ, telo i dušu. Raffles Spa je perfektným útočiskom úniku z ruchu a vzruchu všedného života.

Deti v hoteli Raffles *****

Rezort sa postará aj o zábavu vašich ratolestí. Ponúka komplexný program na mieru pre batoľatá, deti i dospievajúcich. Tunajší tím animátorov voľnočasových aktivít sa denne snaží potešiť vaše najmilšie hrami, ale aj ďalšími aktivitami vo vnútri aj mimo rezortu.

Hlavným zariadením detského klubu Sugar Palm Club je amfiteáter, kde sa deti môžu tešiť zo vzdelávacích a zábavných programov. Kreatívne a aktívne deti sa môžu zúčastniť aj nespočetných praktických činností za dohľadu a koordinácie animátorov. Deti sú rozdelené do troch skupín podľa veku (deti do 4 rokov, deti 4–12 rokov a dospievajúce 12–18 rokov), môžu sa tak ľahšie zoznamovať a hrať sa so svojimi rovesníkmi. Deti do štyroch rokov pritom musia byť sprevádzané aspoň jedným z rodičov či mať inak zaistené stráženie. V rezorte sú tiež chované suchozemské korytnačky a deti sa tak môžu stretnúť s týmto úchvatným živočíchom každý deň.

Svatební balíček „Svatba v ráji” Raffles Seychelles

Raffles Seychelles *****
Raffles Seychelles *****, Seychely

Priestranné vily so súkromným bazénom

Classic svatební balíček od 67 660 Kč podrobnosti
  • - Osobního svatebního koordinátora po dobu přípravy Vaší svatby v hotelu,
  • - Veškeré úřední a správní poplatky na Seychelách,
  • - Zajištění apostily na oddací list,
  • - 1 láhev šampaňského a ovocný talíř,
  • - Kytice pro nevěstu,
  • - Myrta pro ženicha,
  • - Výzdoba svatebního místa,
  • - Květinový svatební oblouk,
  • - Snídaně ve vile ráno po svatbě,
  • - Parní žehlení šatů a obleku před obřadem (v závislosti na materiálu),
  • - Jednopatrový svatební dort,
  • - Zasazení "stromu lásky",
  • - Romantická koupel,
  • - Večeře při svíčkách (nezahrnuje nápoje),
  • - Svatební certifikát,
  • - dárek od hotelu.
  • Svatební formality SEYCHELY
  • - do destinace je potřeba svatební dokumenty doručit POŠTOU, notářsky ověřené a soudně přeložené do AJ
  • - dokumenty nám prosím doručte do kanceláře 2 měsíce před datem svatby a my zařídíme zbytek, cena za doručení dokumentů na Seychely stojí okolo 3000 Kč/120 Eur a tento doplatek Vám bude účtovaný extra.
  • Vážíme si Vašeho času a překlady dokumentů pro Vás vyřídíme my! Nemusíte hledat žádného překladatele a chodit na různé adresy ani se trápit skenováním. Stačí, když se zastavíte osobně v našich kancelářích Praha 1, Na Příkopě 392/9 nebo Brno, Vídeňská 546/55 nebo Bratislava, Miletičova 5. Po dohodě můžete i vše odeslat poštou či po kurýrovi. Zaplatíte pouze cenu samotného ověření a překladu.

ceny jsou informativní a potvrdíme Vám je při rezervaci svatby

Svatby v ráji pořádáme od roku 1998. Jsou připravené speciálně s ohledem na individuální přání a potřeby snoubenců. Naši zaměstnanci destinace opakovaně navštívili a detailně poznali místní prostředí a nabídku služeb. Díky tomu Vám velmi podrobně poradí na základě osobních zkušeností.

Doprava do hotela Raffles Seychelles

Priletíte na medzinárodné letisko hlavného ostrova Seychel, ktorý sa volá Mahé. Hotel Raffles Praslin Seychelles sa nachádza na ostrove Praslin, na ktorý sa môžete dostať tromi spôsobmi – loďou, lietadlom alebo helikoptérou. Akonáhle sa dopravíte na ostrov Praslin, budete vyzdvihnutí a prevezení autom do hotelového rezortu. Pokiaľ zvolíte transfer helikoptérou, poletíte z letiska na Mahé priamo do rezortu, v rezorte majú tiež heliport. Dopravná situácia môže ovplyvniť dobu cesty.

Jazda autom do prístavu v Mahé, cesta loďou a potom autom do hotela trvá cca 1 hod a 40 min. Cesta lietadlom a potom autom do hotela trvá 50 min.

Mapa - Raffles Seychelles *****

Osobné poradenstvo pri DELUXEA zájazde na Seychely do hotela Raffles Seychelles *****

V cestovní kanceláři DELUXEA poskytujeme našim klientům osobní rady. Specialisté cestovní kanceláře DELUXEA cestují po světě a navštěvují hotely, aby Vám klientům poradili v nejmenších detailech. Vyberte si sami odborníka, který Vám poradí s hotelem Raffles Seychelles *****, připraví dovolenou na míru a postará se o Vás.

2023
Ing. Ondřej Světlík
Posledná inšpekcia hotela
Ing. Ondřej Světlík 724 065 774

Recezie hotela Raffles Seychelles *****

Podobný hotel

Letové spojenia na Seychely

Destinácie sme precestovali.
Poskytneme Vám osobné rady.